• sustainable construction contracting, KSA

Welcome to your technical office

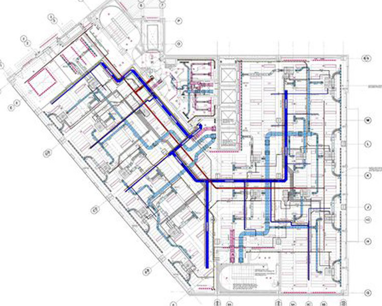
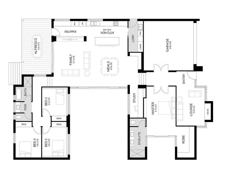
Sustainable construction TECHNICAL OFFICE is consisting of a very professional teams which are ready to produce mass production of projects SHOP DRAWINGS as Civil, Structural, Plumbing, Architectural, Electrical packages and more.

Our primary focus is on the particular project for installation and excludes data concerning other products and installations unless integration with the subject product is necessary. The main thing which makes them important in engineering works is the fact that Shop Drawings tend to focus less on the design intent and instead put emphasis on know-how the final product will be manufactured. Project specifications are always needed, so there can be no doubts related to the demands of clients. Depending on the phase of works and part of the construction, there are Elevation view drawings, Section view drawings, and Detail view drawings.

project-slider-image
project-slider-image
project-slider-image
project-slider-image
project-slider-image
project-slider-image
project-slider-image
project-slider-image
project-slider-image
project-slider-image

We are your backyard technical office

If you are suffering from searching a distinguished and professional technical office support, it will be our honor at Sustainable construction TECHNICAL OFFICE to consider us your backbone technical office, that we are always looking for a professional long lasting business partnership as we are ready to fulfill all your technical requirements whenever you needed to be done and delivered.

  • Architectural Shop Drawings.
  • Structural & Civil Shop Drawings.
  • Sanitary & Plumbing Shop Drawings.
  • MEP Shop Drawings.
  • Electrical Shop Drawings.
  • 15 years of experience in the Kingdom.

You Should Know

When choosing contractors in SAUDI ARABIA, knowing the type of company you need starts with understanding the differences between each role and what they do. Not every contractor has the necessary skills for all areas of construction, so it’s important to get to know your specialists.

• General Contractor — Oversees every aspect of the day-to-day work on a construction project throughout the span of the project.

• Remodeling Contractor —- Focuses on taking an existing building and retrofitting it to a new design. These contractors specialize in remodeling.

• Finishing Contractor —- Focuses on the final elements of a construction project that bring a project to completion.

• Sustainable construction —- All above we are our specialist to provide.

If you have a project that needs expert finishing work, learn more about what to look for in a finishing company. Then give us a call to schedule an appointment. We would love to hear more about your project needs

Interested with this service.